
Na prenájom komerčný priestor s možnosťou využitia ako kancelárie alebo dielne v Šamoríne
- 190 m2
- Šamorín
Moderný maklér ponúka na prenájom skladový priestor v Stupave. Parkovanie je možné priamo v priestore a v okolí je možné parkovať aj nákladné vozidlá.
Hala:
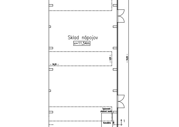
Podlahová plocha: 953 m2
Výška: 11,54 m
Dispozícia:
Dispozícia pozostáva zo sociálnych zariadení, technickej miestnosti, typizovanej plastovej bunky ako kancelárie, 2 miestností o rozlohe 18m2 a 15m2, ktoré môžu slúžiť ako odkladací priestor. Skladovo-výrobné priestory sú vybavené 2x garážovou bránou zpredu a zboku a dverami.
Lokalita:
Objekt je situovaný v širšom centre Stupavy, nachádza sa v bývalom priemyselnom areáli, ktorý prechádza revitalizáciou. K objektu je dobré dopravné napojenie. V okolí nájdete jedáleň, obchod, fitnes centrum, kaviareň a služby.
Cena:
5129,25€/mesiac + DPH + energie (voda a vykurovanie fakturované samostatne, elektrina 50€/mesiac v prípade využívania iba osvetlenia)
V cene je zahrnuté:
Provízia realitnej kancelárie a poskytnutie komplexných realitných a právnych služieb – vypracovanie nájomnej zmluvy. Všetky ďalšie informácie Vám rád poskytnem pri osobnej prehliadke alebo telefonicky.
Erik Vávra - 0944 523 833
Informácie o nehnuteľnosti sú uverejnené so súhlasom a vedomím majiteľa.
Ulica: | ulica |
---|---|
Obec: | Stupava |
Okres: | Malacky |
Kraj: | Bratislavský kraj |
Druh: | Objekty |
Typ: | Prenájom |
Typ objektu: | Sklad |